
SMARTHOUSE S
Uporabna neto površina: 48,80 m2
Bruto površina: 70,93 m2 (vključno s teraso; 1m previsa)
AKCIJA: Super ugodnosti na vzorčne hiše
Za vse, ki se zanimate za nakup montažne hiše SmartHouse S smo pripravili prav posebno akcijo. Kupcem vzorčne montažne hiše S bomo hišo zgradili s posebnimi ugodnostmi.
Hkrati bomo poskrbeli, da bo vaša nova hiša vseljiva že v treh mesecih.*
* Velja ob izpolnjenih pogojih za gradnjo med katere prištevamo potrjen gradbeni načrt,
pravnomočno gradbeno dovoljenje.

SMARTHOUSE XL
Uporabna neto površina: 108,87 m2
SmartHouse koncept je razvit na osnovi dolgoletnih izkušenj s projektiranjem in gradnjo klasičnih in nizkoenergijskih hiš tako v Sloveniji kot v tujini. SmartHouse koncept nam omogoča optimalno in hitro gradnjo, brez kompromisov pri kakovosti in ceni.
* Velja ob izpolnjenih pogojih za gradnjo med katere prištevamo potrjen gradbeni načrt,
pravnomočno gradbeno dovoljenje.



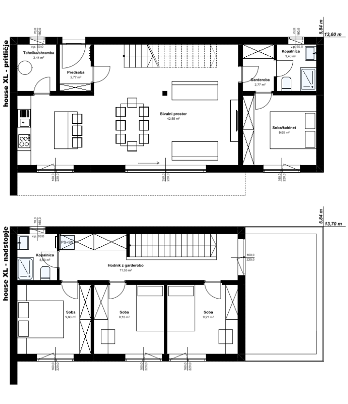
TLORIS: Hiša XL

TLORIS: Hiša XL

VSE KAR POTREBUJETE
1. GRADBENA FAZA
Elementi
Stavbno mizarski izdelki pvc
Montaža
Tehnična dokumentacija (PZI + delavniška dokumentacija)
Transport in avtodvigalo
Razno
Fasaderska dela in gradbeni oder
Krovsko kleparska dela
2. GRADBENA FAZA
Slikopleskarska dela
Vodovod + Elektrika
Smart house tehnologija
Betonske izolacijske talne plošče
Sistem talnega ogrevanja
Elektro peč
3. GRADBENA FAZA
Notranja vrata
Parket
Keramika
Sanitarna keramika
Drugo
LASTNA PROIZVODNJA
S svojo lastno proizvodno halo v Ormožu zagotavljamo popoln nadzor nad kakovostjo ne samo pri gradnji temveč tudi pri vseh izbranih materialih. Takšen pristop nam omogoča optimalno in hitro gradnjo montažnih hiš, brez kompromisov med kakovostjo in ceno.






super ugodnosti na vzorčne hiše

VAS ZANIMA?
Pošljite povpraševanje:

Koncept SmartHouse predstavljamo
tudi na sejmu DOM v Ljubljani
Koncept SmartHouse je razvit na osnovi dolgoletnih izkušenj s projektiranjem ter gradnjo nič in nizkoenergijskih hiš tako v Sloveniji kot v tujini.
V kolikor vas zanima več, vas vabimo, da nas med 4. in 8. marcem nas obiščite na sejmu DOM v Ljubljani.
Najdete nas v Stekleni dvorani na razstavnem prostoru C6.
Se vidimo!