
SMARTHOUSE L
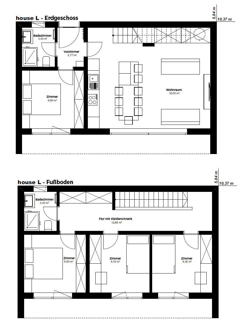
Gesamtnutzfläche netto: 93,17 m2
Bruttofläche:132,12 m2 (einschließlich mit Terrasse; 1m Überhang)
AKTION: Super Günstigkeiten bei Müsterhäusern
Für alle, die sich für den Kauf unseres Modulhauses SmartHouse L interessieren, haben wir eine wirklich besondere Aktion vorbereitet. Allen Käufern des Müsterfertighauses L werden wir das Haus mit vielen zusätzlichen Vorteilen bauen.
So kann Ihr Haus schon in 3 Monaten bezugsfertig sein.
* Gilt bei erfüllten Bedingungen fürs Bauen unter denen man einen bestätigten Bauplan,
rechtskräftige Baugenehmigung zählt.




GRUNDRISS: Haus L
ALLES WAS SIE BRAUCHEN
1. BAUPHASE
Elemente
Ausbau-Tischler Produkte PVC
Montage
Technische Unterlagen
Transport und Montagekran
Verschiedenes
Fassadenarbeiten und Baugerüst
Spenglerarbeiten
2. BAUPHASE
Estrich
Maler und Spachtelarbeiten
Wasserinstallationen + Elektrik
Deckenschließung
Smart house Technologie
Deckenheizung/-kühlung
Wärmepumpe
Lüftung
3. BAUPHASE
Innentüren
Treppe
Parkett
Keramik
Sanitärkeramik
Anderes
Preis des Grundmodells mit MwSt:
129.000.00 €
EIGENE PRODUKTION
Mit unserer eigenen Produktionshalle in Ormož gewährleisten wir die volle Kontrolle über die Qualität nicht nur beim Bau, sondern auch bei dem ausgesuchten Material. Solcher Ansatz ermöglicht uns optimalen und schnellen Bau von Fertighäusern, ohne Kompromisse zwischen Qualität und Preis.






SUPER ANGEBOTE auf Musterhäuser

Interessiert?
Schicken Sie eine Anfrage:

Koncept SmartHouse predstavljamo
tudi na sejmu DOM v Ljubljani
Koncept SmartHouse je razvit na osnovi dolgoletnih izkušenj s projektiranjem ter gradnjo nič in nizkoenergijskih hiš tako v Sloveniji kot v tujini.
V kolikor vas zanima več, vas vabimo, da nas med 4. in 8. marcem nas obiščite na sejmu DOM v Ljubljani.
Najdete nas v Stekleni dvorani na razstavnem prostoru C6.
Se vidimo!